Zagreb, Gračani, Luksuzni trosobni stan, 84.41 m2, Garažno mjesto, Vrt

  • 392.500,00€
Prodaja Izvanredna lokacija
Zagreb, Gračani, Luksuzni trosobni stan, 84.41 m2, Garažno mjesto, Vrt
  • 392.500,00€

Pregled

  • Stan
  • Tip nekretnine
  • 2
  • Spavaće sobe
  • 1
  • Kupaona
  • 1
  • Garaža
  • 84,41
  • 2026
  • Godina izgradnje

Opis

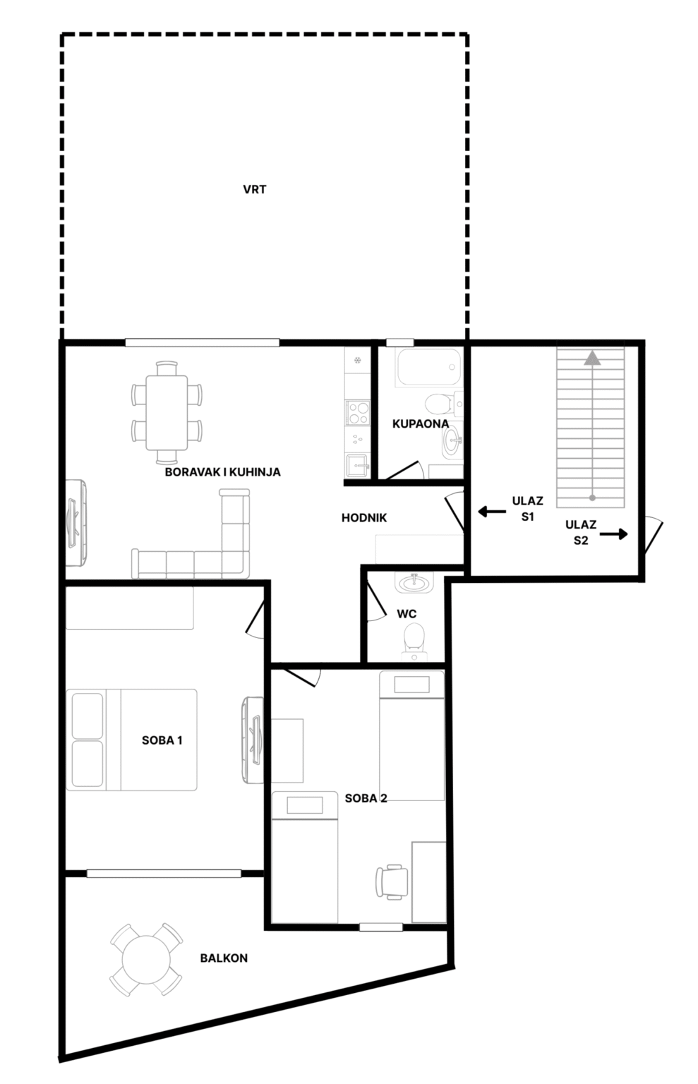
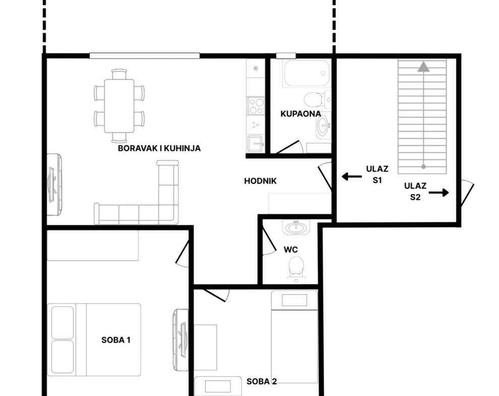
Parthenon nekretnine posreduju u prodaji luksuznog trosobnog stana u novoj urbanoj vili, veličine 84.41 m2, na atraktivnoj poziciji u naselju Gračani, Zagreb.

Stan je novogradnja, nalazi se na 1. katu od ukupno 2 kata, u urbanoj vili s ukupno 3 stana. Stanu pripada i garažno parkirno mjesto te ostava. Ukupna kvadratura 125.22 m2.

Stan od 84.41 m2, sastoji se od: hodnika, prostranog openspace dnevnog boravka s kuhinjom i blagovaonicom (28.36 m2), koji ima izlazak na vrt veličine 33 m2, dvije prostrane spavaće sobe, kupaonice i dodatnog toaleta, te balkona koji ima pristup iz obje spavaće sobe (8.97 m2). Spremište i garažno parkirno mjesto ukupne su kvadrature 26.50 m2.

Stan je rađen i opremljen materijalima najviše kvalitete, visoke energetske učinkovitosti i protupotresnom gradnjom.

Stolarija je PVC, antracit boje, najviše kvalitete s električnim podizačima roleta, te komarnicima.

Za maksimalno udobnost, postavljen je kvalitetan parket i keramika uz dizalice topline i podno grijanje. U stan su postavljeni i klima uređaji.

Mikrolokacija je vrlo atraktivna i mirna, odlična za ugodan i nesmetan život, s dobrom prometnom povezanosti. Brz pristup javnom prijevozu, trgovačkom centru, školama, vrtiću, sportskom centru i centru grada. Blizina žičare Sljeme, planinarskih staza i prirode.

Cijena stana je: 392.500 €

Vlasništvo je uredno 1/1

Mogućnost kupnje na kredit.

Moguć dogovora za popusta na avansnu uplatu.

Završetak gradnje je početak 2026. godine.

Za više informacija, na raspolaganju Vam stoji naša agentica Ines koju možete kontaktirati na broj telefona: 091-482-5857.

Dogovori sastanak






    Vaše informacije





    Compare listings

    Compare
    Ines Klaric
    • Ines Klaric
    Jezik »