Parthenon nekretnine posreduju u prodaji stanova u novogradnji, na atraktivnoj lokaciji u Velikoj Gorici. Stanovi su veličine od 40 m2 do 150 m2.
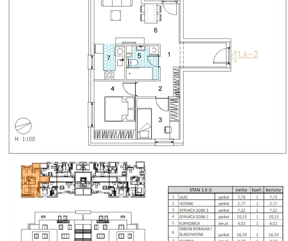
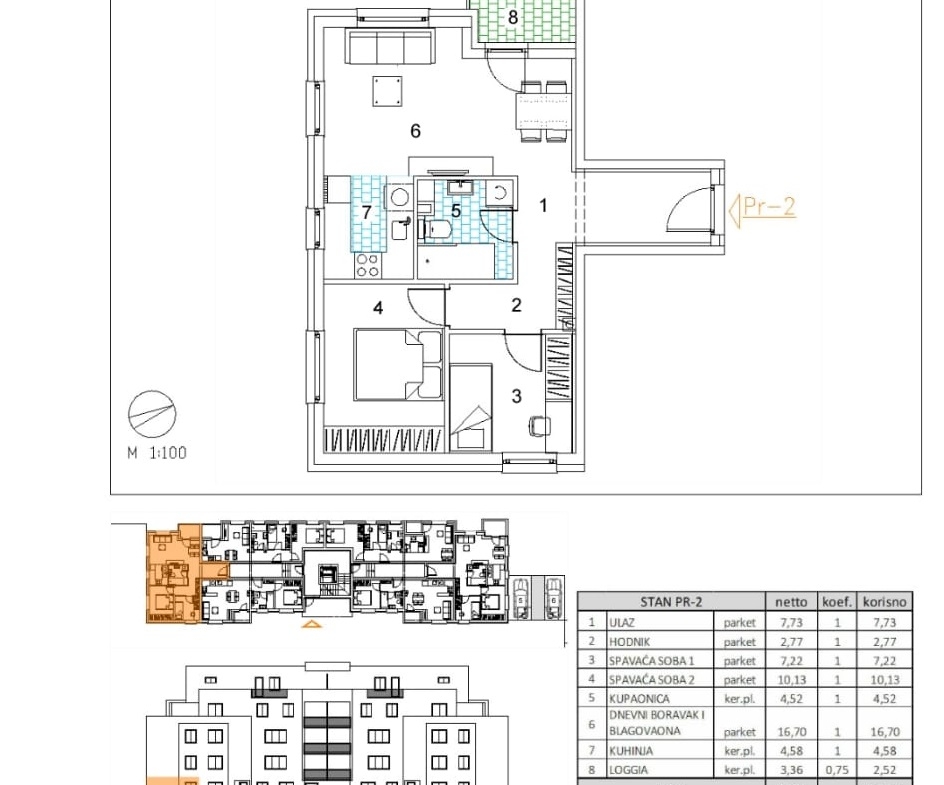
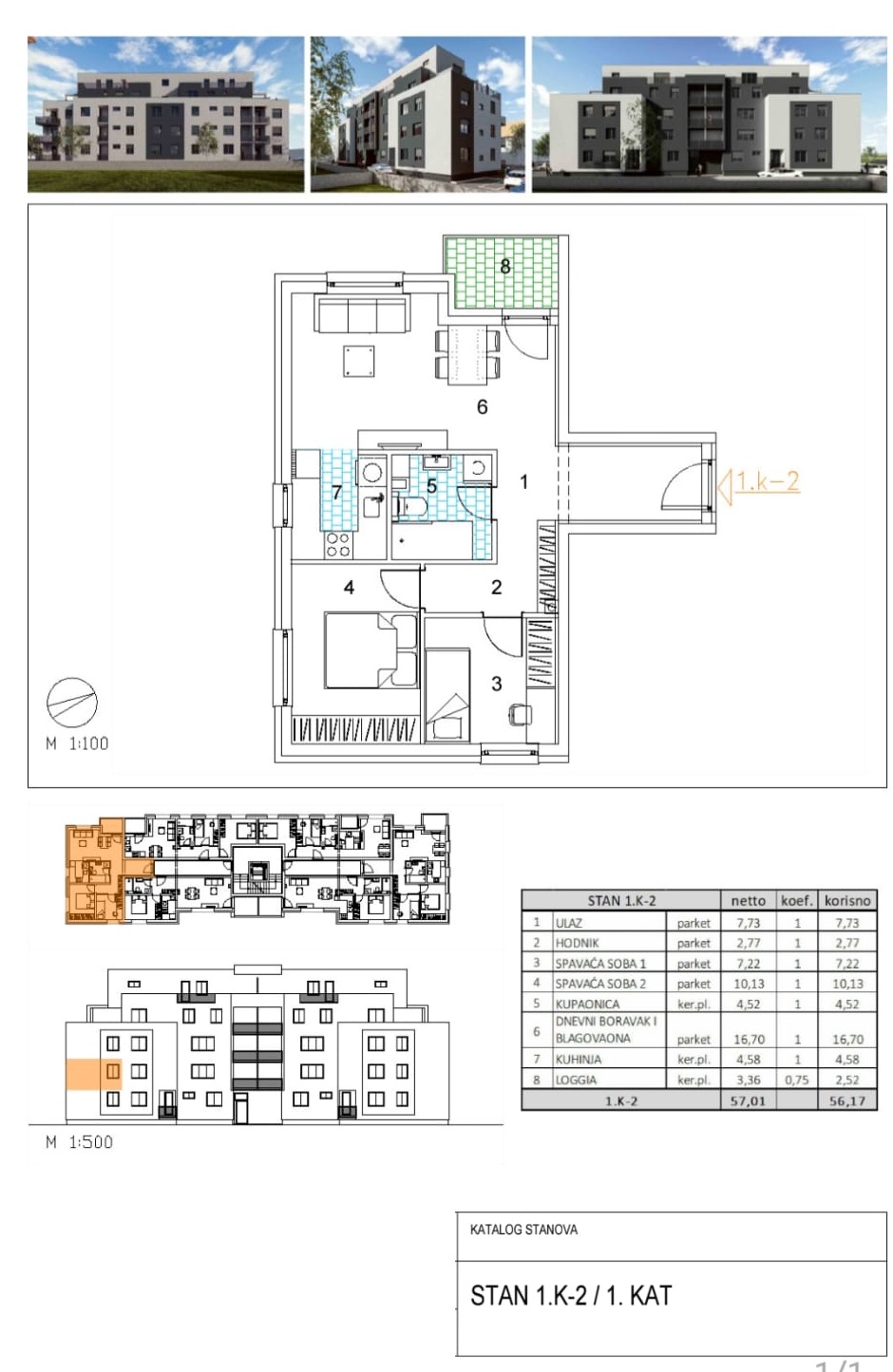
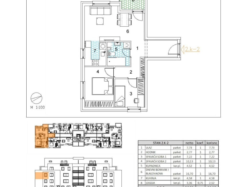
Trosoban stan od 56.17 m2, dostupan u prizemlju, 1. i 2. katu kvalitetne novogradnje, od ukupno 5 katova, energetskog razreda A/A+. Već prepoznata kvaliteta provjerenog investitora, osigurava odličnu izvedbu i dobro osmišljen projekt.
Konstrukcija objekta je armirano betonska (AB) i zidana (blok opeka), fasada se izvodi po sistemu ETICS s toplinskom izolacijom. Velike staklene klizne stijene izvedene su u aluminijskim profilima, manje prozorske površine izvedene su u PVC stolariji, ostakljena izo LOW-e troslojnim staklom. Podovi ulaznog prostora, hodnika, soba, dnevnog boravka i blagovaonice obloženi su troslojnim parketom od hrasta, visoke kvalitete i modernog dizajna, prilagođenim podnom grijanju, podovi kuhinje, WC-a i kupaonice obloženi su keramičkim pločicama, a terase i lođe protukliznim keramičkim pločicama.
Grijanje je plinsko etažno podno, hlađenje preko zidnih jedinica, digitalni termostat i mogućnost daljinskog upravljanja s postavkama grijanja u svim sobama.
Protuprovalna ulazna vrata u stanove i vrhunska unutarnja stolarija u bijeloj boji.
Dostupna su vanjska i unutarnja parkirna mjesta, te vanjske i unutarnje garaže.
Netto površina stana je 56.17 m2, a sastoji se od:
Prostranog dnevnog boravka s blagovaonicom i izlaskom na lođu, kuhinje, 2 spavaće sobe, kupaonice i hodnika.
Početak gradnje: 02/2026
Planirani završetak: 07/2027
Vlasništvo je uredno 1/1
Mogućnost kupnje putem kredita
U cijenu je uračunat PDV
Cijena nekretnine: 190.978,00 €
Vanjsko parkirno mjesto – 10.000 EUR
Garažno parkirno mjesto – 18.000 EUR
Garaža – 25.000 EUR
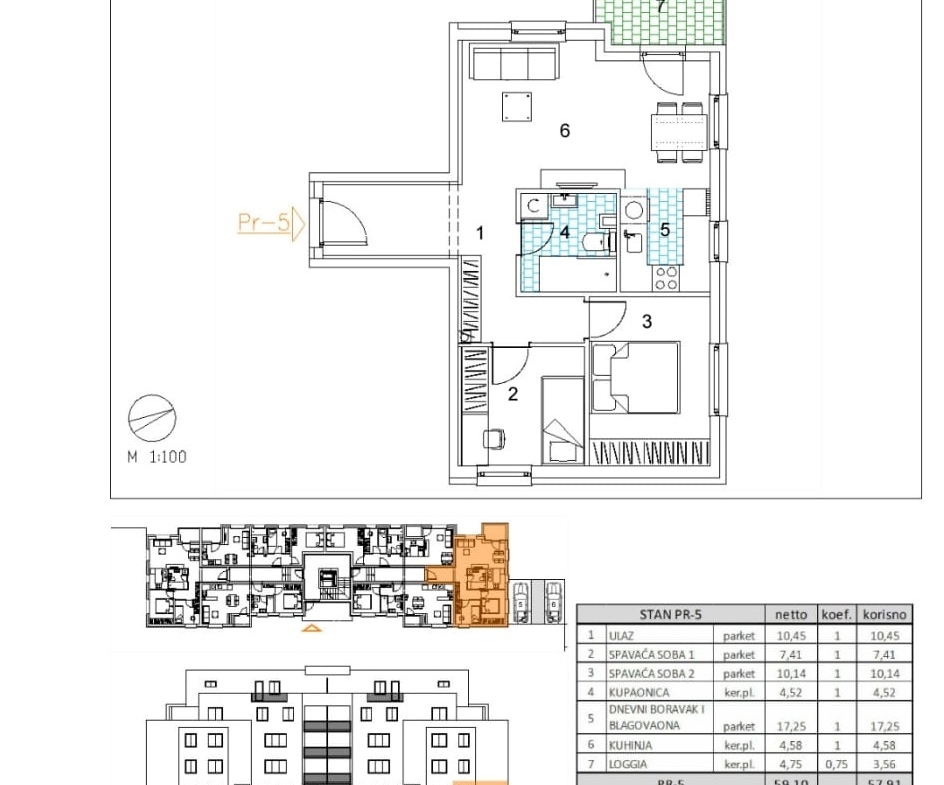
U sličnim kvadraturama dostupni su i drugi stanovi, na više katova, fotografije u oglasu prikazuju tlocrte dostupnih stanova.
Također, dostupni su stanovi i većih kvadratura, za više informacija, na raspolaganju Vam stoji naša agentica Ines koju možete kontaktirati na broj telefona: 091 4825 857.
Compare listings
Compare