Novogradnja, Velika Gorica, Trosoban stan, 61.90 m2

  • 210.460,00€
Prodaja
Novogradnja, Velika Gorica, Trosoban stan, 61.90 m2
  • 210.460,00€

Pregled

  • Stan
  • Tip nekretnine
  • 2
  • Spavaće sobe
  • 1
  • Kupaona
  • 61,90
  • 2026
  • Godina izgradnje

Opis

Parthenon nekretnine posreduju u prodaji stanova u novogradnji, na atraktivnoj lokaciji u Velikoj Gorici. Stanovi su veličine od 40 m2 do 150 m2.

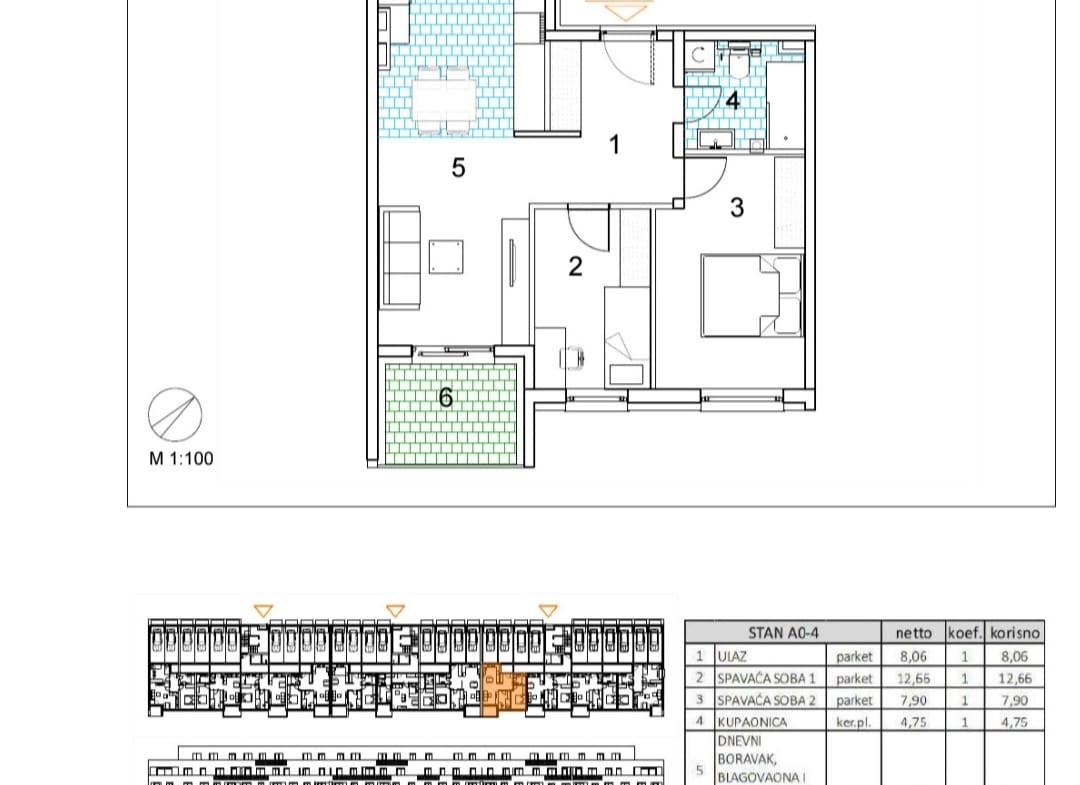
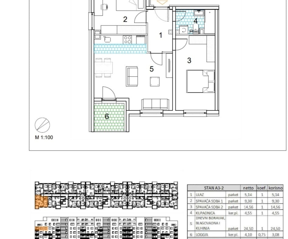
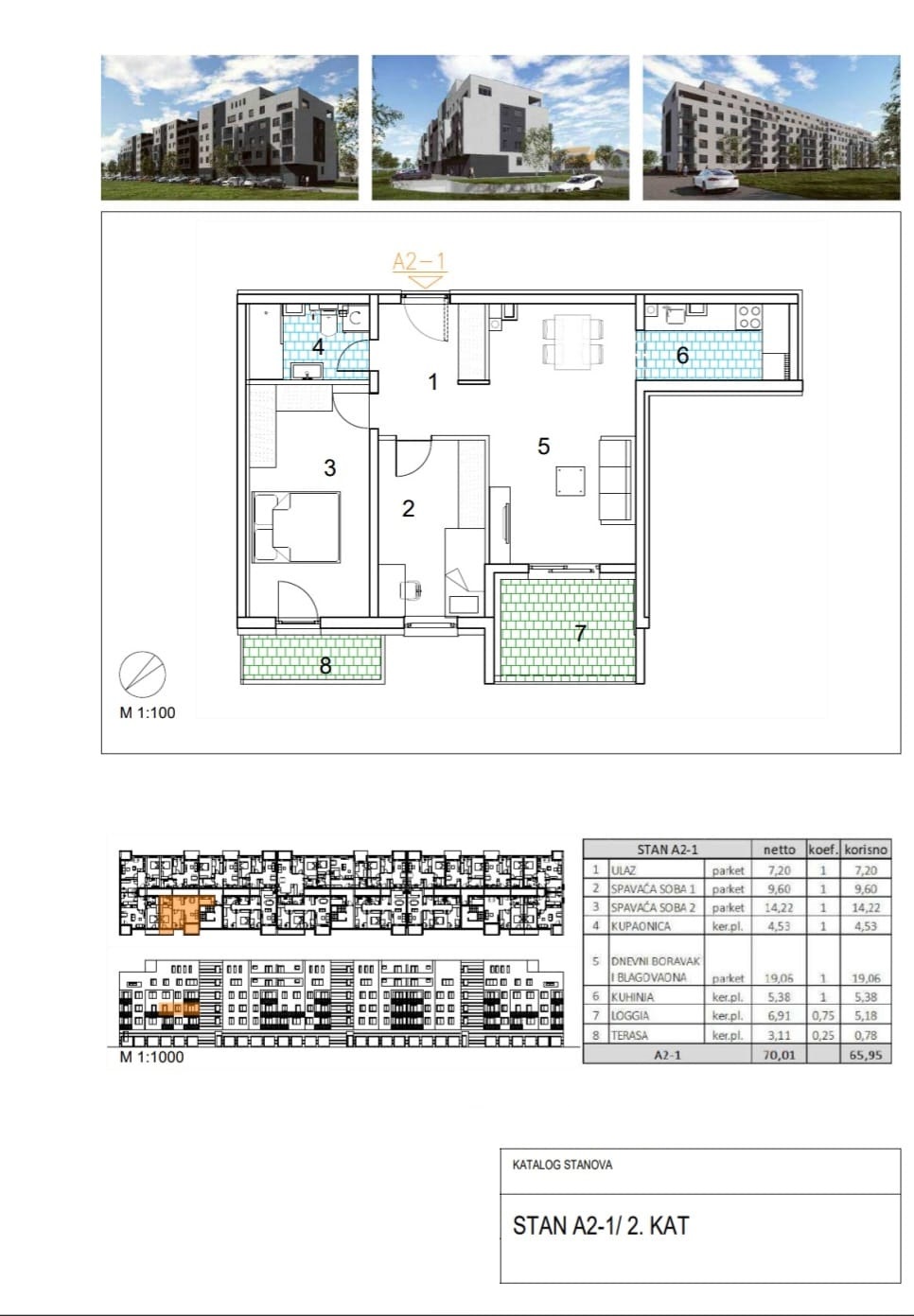
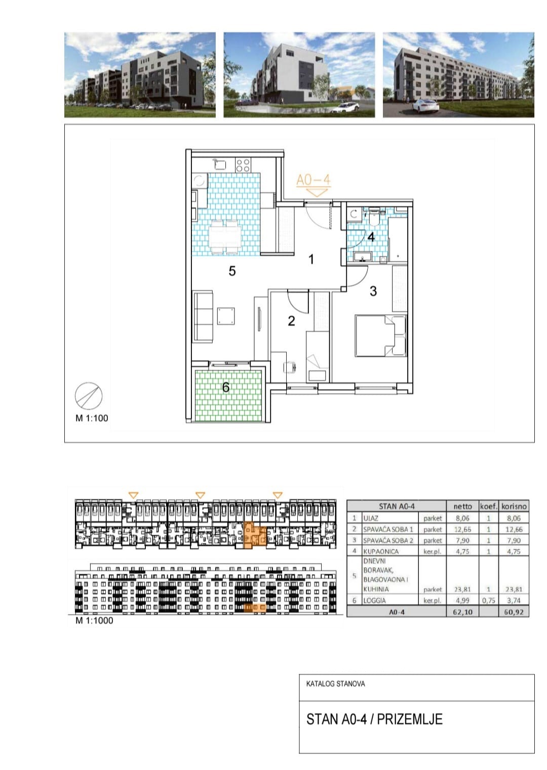
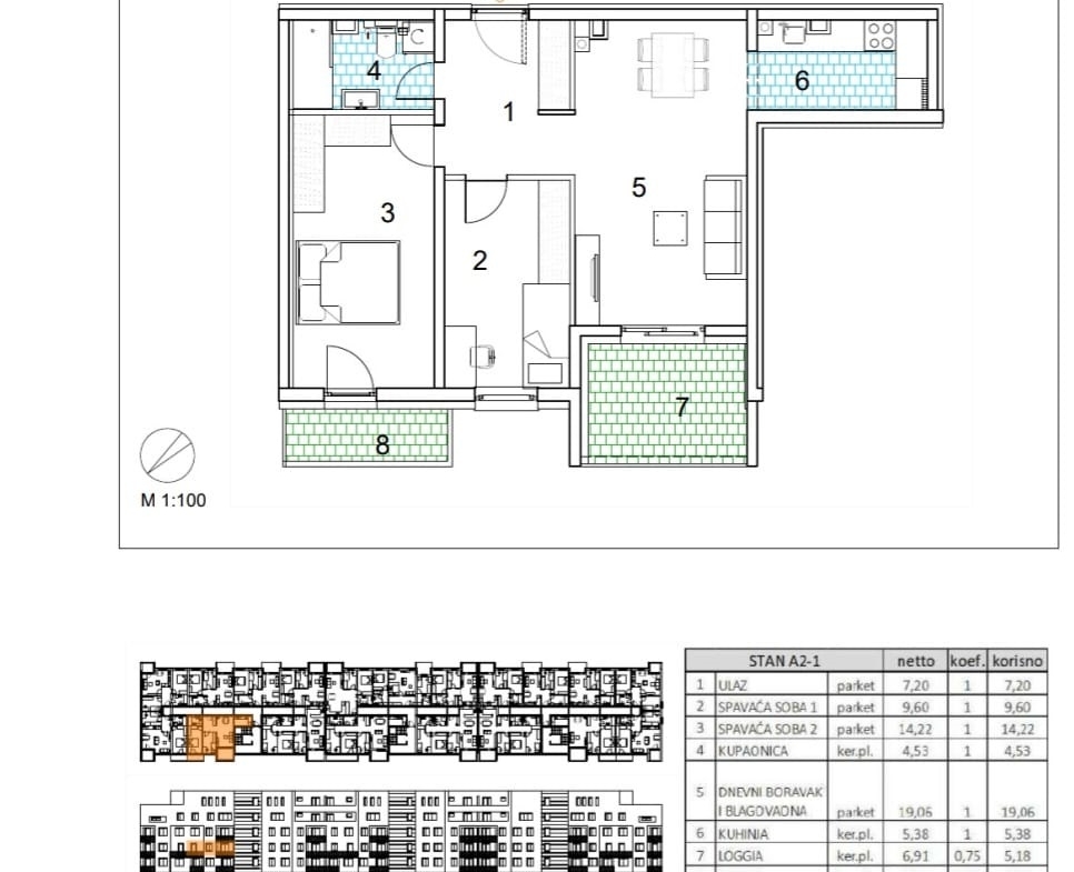
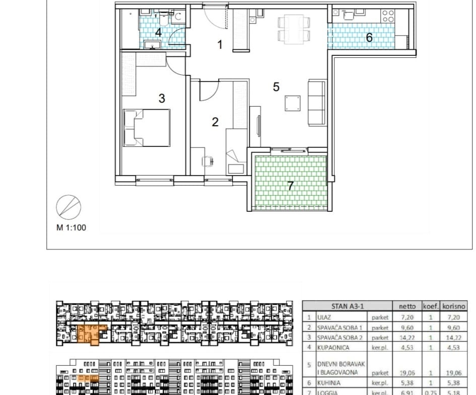
Trosoban stan od 61.90 m2, na 2. katu kvalitetne novogradnje, od ukupno 5 katova, energetskog razreda A/A+. Već prepoznata kvaliteta provjerenog investitora, osigurava odličnu izvedbu i dobro osmišljen projekt.

Konstrukcija objekta je armirano betonska (AB) i zidana (blok opeka), fasada se izvodi po sistemu ETICS s toplinskom izolacijom. Velike staklene klizne stijene izvedene su u aluminijskim profilima, manje prozorske površine izvedene su u PVC stolariji, ostakljena izo LOW-e troslojnim staklom. Podovi ulaznog prostora, hodnika, soba, dnevnog boravka i blagovaonice obloženi su troslojnim parketom od hrasta, visoke kvalitete i modernog dizajna, prilagođenim podnom grijanju, podovi kuhinje, WC-a i kupaonice obloženi su keramičkim pločicama, a terase i lođe protukliznim keramičkim pločicama.

Grijanje je plinsko etažno podno, hlađenje preko zidnih jedinica, digitalni termostat i mogućnost daljinskog upravljanja s postavkama grijanja u svim sobama.

Protuprovalna ulazna vrata u stanove i vrhunska unutarnja stolarija u bijeloj boji.

Dostupna su vanjska i unutarnja parkirna mjesta, te vanjske i unutarnje garaže.

Netto površina stana je 61.90 m2, a sastoji se od:

Prostranog dnevnog boravka s blagovaonicom i kuhinjom koji ima izlazak na lođu, 2 spavaće sobe, od kojih jedna ima izlazak na terasu, kupaonice, te ulaznog prostora/hodnika.

Početak gradnje: 02/2026

Planirani završetak: 07/2027

Vlasništvo je uredno 1/1

Mogućnost kupnje putem kredita

U cijenu je uračunat PDV

Cijena nekretnine: 210.460,00 €

Vanjsko parkirno mjesto – 10.000 EUR

Garažno parkirno mjesto – 18.000 EUR

Garaža – 25.000 EUR

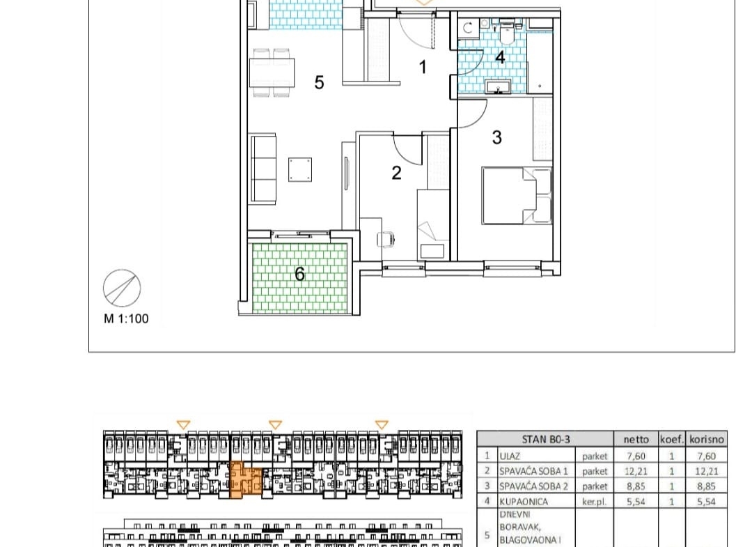
U sličnim kvadraturama dostupni su i drugi stanovi, na više katova, fotografije u oglasu prikazuju tlocrte dostupnih stanova.

Također, dostupni su stanovi i većih kvadratura, za više informacija, na raspolaganju Vam stoji naša agentica Ines koju možete kontaktirati na broj telefona: 091 4825 857.

Dogovori sastanak






    Vaše informacije





    Compare listings

    Compare
    Ines Klaric
    • Ines Klaric
    Jezik »